Description
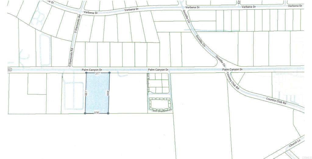
Discover a rare opportunity to own 5.24 acres in the heart of downtown Borrego Springs. Ideally positioned in a prime location, this expansive parcel is zoned Residential-Commercial, intended for mixed residential-commercial areas. Perfect for a mobile home/RV park. Set within the charming desert community of Borrego Springs, the property is surrounded by the breathtaking beauty of Anza-Borrego Desert State Park, spanning over 160,000 acres of protected natural landscape. Known for its peaceful atmosphere and stunning desert scenery, the area attracts visitors and residents seeking tranquility, outdoor adventure, and artistic inspiration. As a designated Dark Sky Community, Borrego Springs offers some of the clearest, most spectacular stargazing in Southern California—an increasingly rare and valuable feature. With its central location, versatile zoning, and unmatched natural surroundings, this property presents an outstanding investment and lifestyle opportunity.
-
0BEDS
-
5.24ACRES
-
0BATHS
-
01/2 BATHS
School Ratings & Info
Description
Discover a rare opportunity to own 5.24 acres in the heart of downtown Borrego Springs. Ideally positioned in a prime location, this expansive parcel is zoned Residential-Commercial, intended for mixed residential-commercial areas. Perfect for a mobile home/RV park. Set within the charming desert community of Borrego Springs, the property is surrounded by the breathtaking beauty of Anza-Borrego Desert State Park, spanning over 160,000 acres of protected natural landscape. Known for its peaceful atmosphere and stunning desert scenery, the area attracts visitors and residents seeking tranquility, outdoor adventure, and artistic inspiration. As a designated Dark Sky Community, Borrego Springs offers some of the clearest, most spectacular stargazing in Southern California—an increasingly rare and valuable feature. With its central location, versatile zoning, and unmatched natural surroundings, this property presents an outstanding investment and lifestyle opportunity.
Based on information from California Regional Multiple Listing Service, Inc. as of 2026-04-21T11:28:09.7. This information is for your personal, non-commercial use and may not be used for any purpose other than to identify prospective properties you may be interested in purchasing. Display of MLS data is deemed reliable but is not guaranteed accurate by the MLS or Legacy 15 Real Estate Brokers. Licensed in the State of California, USA.
